Neericode, Alangad
A cute villa with a great design. This villa has all the comfort of a large house and is developed with a plan that gives more space. The rooms are well ventilated and gives an elegant feel. Three bedrooms, kitchen with cabinets, compound wall with large gates makes this property a dream come true for a small family. And what more, this house is easily accessable through public and private transport.
| Doors | Details |
|---|---|
| Door & Windows | Front door in teak wood. Laminated good quality readymade inside doors.(Godrej/Equivelant) Fibre door for bathrooms Hardwoods will be used for windows and frames. |
| Electrical | Details |
|---|---|
| Electrical | Three phase connection with adequate light and fan points controlled by ELCB and MCB with independent KSEB Meters. A/C points in all bed rooms Modular switches of superior quality. Provide telephone and TV points (Finolex, V-Guard and Havells) |
| Kitchen | Details |
|---|---|
| Kitchen Counter | Edge rounded jet black granite and single bowl stainless steel sink with drain board for kitchen and tiles upto 7 feet height. Provide mixed tap for kitchen and utility. Single bowl stainless steel for utility |
| Flooring | Details |
|---|---|
| Flooring | High quality large vitrified tiles in all rooms Size 1200CM x1200CM |
| Painting | Details |
|---|---|
| painting | Interior and exterior walls are applied with one coat white cement , one coat primer, two coat putty and emulsion. Asian Apex paint applied for interior walls and Apex ultima for exterior walls. |
| Watersupply | Details |
|---|---|
| KWA | Provide well and KWA water supply for villa |
| Compound wall | All round compound wall. |
| Toilet | Attached Bathrooms |
| Gate | Large Gate |
| Roads | Wide road |
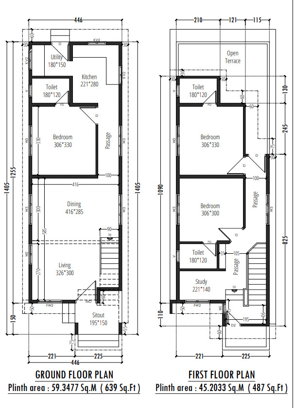
Villa Plan
| Place | Approximate Distance in Kilometers |
|---|---|
| Aluva Town | 9.9 |
| UC College | 6.8 |
| Nedumbassery Airport | 17.1 |
| Aluva Metro Station | 7.8 |
| Ernakulam Town | 15.5 |
| Cherai beach | 17.1 |
| Lulu Mall | 12.1 |
| Aster Medicity | 9.9 |
| North Paravur | 11 |